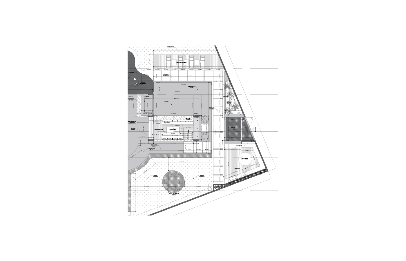
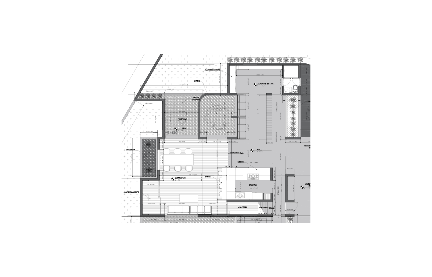
The Water Refuge

The Water Refuge in Puerto Rico is a zen residence where rivers, gardens, and tropical landscape embrace daily life. Designed for artist Rafa Pabón and his family, it is a sanctuary of water, serenity, and intimacy.
Puerto Rico | 2023

Back to Top
Return Back
Close Zoom
The context menu is disabled for site protection.