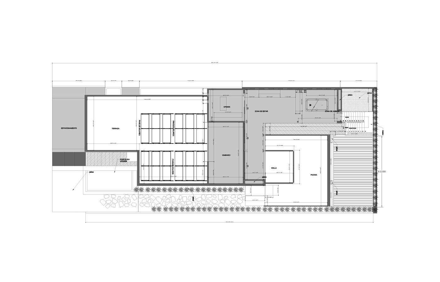
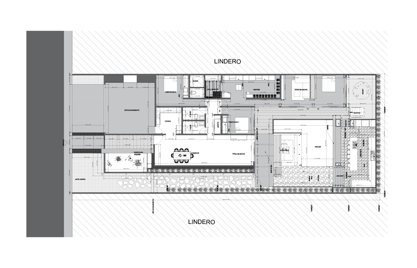
The Temple of Horizon

The Temple of Horizon in Puerto Rico is a residential sanctuary where horizon, water, and tropical nature converge. More than a house, it is a space of openness and contemplation, turning daily life into a ritual of serenity.
Puerto Rico | 2023

Back to Top
Return Back
Close Zoom
The context menu is disabled for site protection.